Fyre Lake National


Sherrard, IL

12,000 SF


All Projects

Fyre Lake National Golf Club is a 275 acre Planned Unit Development, in the Village of Sherrard, IL, located 12 miles south of the Quad Cities. This Nicklaus Design 18-hole course is scheduled to open fall 2010.

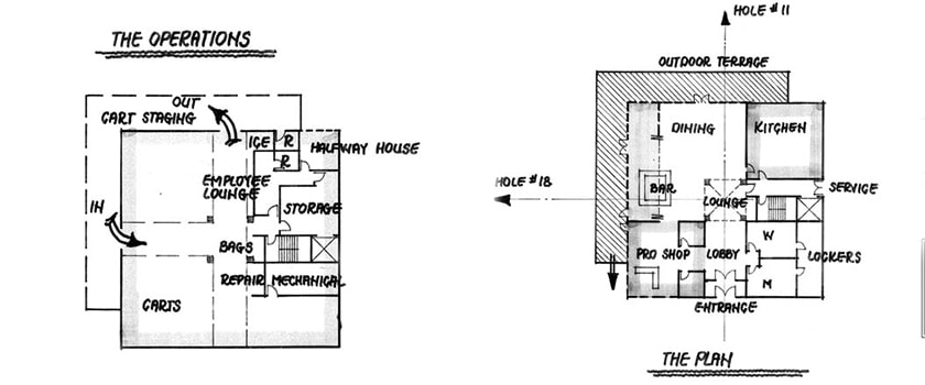
The proposed clubhouse is nestled among the course with spectacular views of the 18th and 11th holes. Lifts were used to establish the main level elevation of the clubhouse in relation to the surrounding landscape. With the proper clubhouse orientation and building pad height determined the panoramic views were achieved.

To create a design road map we researched the history of Sherrard, IL. Discovered by the Norse, although relevant to it’s the past, a Viking ship was probably not the suitable inspiration for a clubhouse. The clubhouse design was derived from the Fyre Lake National Logo, an Argyle.

An Argyle represents a series of overlapping planes that create movement. Which in parity has the same look and feel of the Nicklaus designed course only in building form. With that in mind, the design began by utilizing overlapping squares to create the floor plan. Once the pro shop and kitchen were established, the rest was easy. Rotate the building 35 ½ degrees from normal and unveil unobstructed views from the dining and bar to the signature 11th hole and looking down the 18th fairway. The western setting sun was also shielded by the orientation of the building and the rest fell into place. So was a new marketing mantra “35½ degrees from normal.”

This two level 12,000 square foot building has indoor cart storage for 72 golf carts on the lower level, with grill, bar, kitchen, pro shop and locker rooms on the main level. Fyre Lake National is proof that great design doesn’t have to come with an expensive price tag!