Inverness Golf Club


Inverness, IL


All Projects

Established and built in 1926, Inverness Golf Club went through a significant amount of changes to become the clubhouse as it remains today. From a ground up new clubhouse constructed in 1955 to an unfortunate fire in 1959, the clubhouse has undergone numerous remodels to a point where the overall layout lost its purpose with inefficient member traffic flow and operational obstacles.

The membership had the foresight to agree that a clubhouse master plan was required to allow them the flexibility to proceed with future renovations and make informed decisions to work toward one common goal. A clubhouse that is evolving to the ever changing demographics of today’s members and future needs for tomorrows realities.

The master plan was designed with the upmost flexibility with various options and overall project pricing structure. The information was actually presented to the board of directors on their dinner menu format which was obviously informative but allowed some levity on a serious matter such as cost.

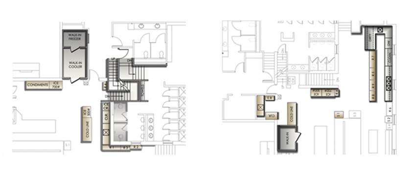
From this master plan, the board made the appropriate decision to remodel the kitchen, confident that no rework would be necessary for future renovations throughout the building.

Today, the club has a roadmap to renovate, at their pace, and in the end show current and new members the future growth for the clubhouse.